VOLKSWAGEN Jetta VI (162 AV2 AY2) 2010-2014

750 руб.
Быстрый заказ

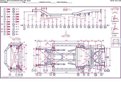
Контрольные кузовные размеры Фольксваген Джетта дорестайл шестого поколения:
- Из заводского руководства по ремонту кузова VOLKSWAGEN Jetta VI (162 AV2 AY2) 2010-2014, в том числе диагональные размеры проемов кузова и сведения о зазорах.
Производитель предупреждает: "Все размеры используются только для проверки; точные размеры задаются стапелем."
Файл VW Jetta VI (162 AV2 AY2) 2010-2014.pdf

- Размеры кузова, как проекционные, так и непосредственного измерения, в том числе диагональные размеры проемов кузова.
Файл 2012_VOLKSWAGEN_Jetta__4DR__Sed.pdf

В галереи товара представлены эскизы изображений уменьшенного объема.
Покупателю высылаются PDF файлы исходного качества.