VOLKSWAGEN GTI (5K) 2009-2014

750 руб.
Быстрый заказ

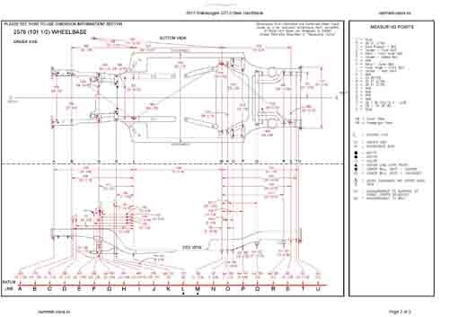
Контрольные кузовные размеры Фольксваген GTI:
- Геометрические размеры кузова VOLKSWAGEN GTI (5K) 2009-2014, как проекционные, так и непосредственного измерения, в том числе диагональные размеры проемов кузова и контрольные точки для восстановления геометрии кузова. Рассмотрены 2-х и 4-х дверные модели.
Файлы
2013_Volkswagen_GTI_2-Door_Hatchback.pdf
2013_Volkswagen_GTI_4-Door_Hatchback.pdf

В галереи товара представлены эскизы изображений уменьшенного объема.
Покупателю высылаются PDF файлы исходного качества.