TOYOTA RAV4 (2X) 2000-2005

750 руб.
Быстрый заказ

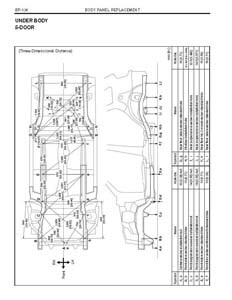
Контрольные кузовные размеры TOYOTA RAV4 (2X) 2000-2005:
- Из заводского руководства по ремонту кузова для серий ACA20,21,22,23 CLA20,21, ZCA25,26, в том числе диагональные размеры проемов.
Файл Toyota_RAV4_2000-2005_brm.pdf

- Проекционные геометрические размеры кузова с привязкой к стапелю.
Файлы
RAV4_3-D_2WD_TYPE_ZCA25_2000-2005-stapel.PDF
RAV4_5-D_4WD_TYPE_ACA21_2000-2005-stapel.PDF

-Геометрические размеры, как проекционные, так и непосредственного измерения, в том числе диагональные размеры проемов кузова и контрольные точки для восстановления геометрии.
Файлы
2002_TOYOTA_Rav4__4DR__4WD.pdf
2004_TOYOTA_Rav4__4DR__2WD.pdf

Обратите внимание: все файлы многостраничные.
В галереи товара представлены эскизы изображений уменьшенного объема.
Покупателю высылаются PDF файлы исходного качества.