TOYOTA Prius (NHW11) 2000-2003

750 руб.
Быстрый заказ

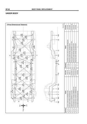
Контрольные кузовные размеры:
- Из официального руководства по ремонту кузова TOYOTA Prius (NHW11) (05_2000--07_2003), в том числе диагональные размеры проемов.
Файл TOYOTA_Prius_(NHW11)_2000-2003.pdf

Обратите внимание: все файлы многостраничные.
В галереи товара представлены эскизы изображений уменьшенного объема.
Покупателю высылаются PDF файлы исходного качества.