TOYOTA Land Cruiser 70 1984-2007

750 руб.
Быстрый заказ

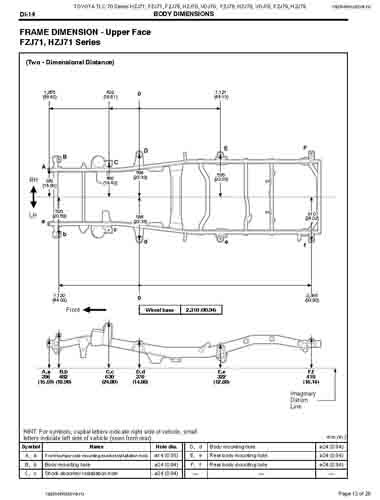
Контрольные кузовные размеры:
- Геометрические размеры кузова из официального руководства по ремонту TOYOTA Land Cruiser 70 1984-2007 Series HZJ71, FZJ71, FZJ76, HZJ76, VDJ76, FZJ78, HZJ78, VDJ78, FZJ79, HZJ79, как проекционные, так и непосредственного измерения, в том числе диагональные размеры проемов кузова и контрольные точки для восстановления геометрии.
Файл TOYOTA_Land_Cruiser_70_1984-2007.pdf

В галереи товара представлены эскизы изображений уменьшенного объема.
Покупателю высылаются PDF файлы исходного качества.