TOYOTA Land Cruiser 150 Prado 2015-2017

750 руб.
Быстрый заказ

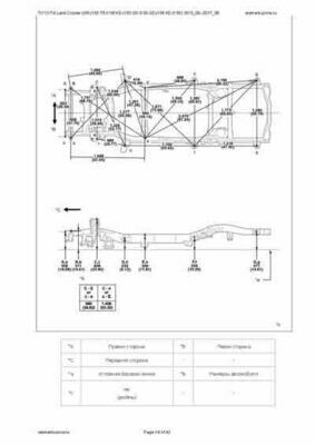
Контрольные кузовные размеры:
- Из официального руководства по ремонту кузова TOYOTA Land Cruiser 150 Prado 2015/06--2017/08, в том числе диагональные размеры проемов. Для 3-х и 5-ти дверных моделей. На русском языке.
Файл TOYOTA_Land_Cruiser_(GRJ150_TRJ150_KDJ150_GDJ150_GDJ155_KDJ155)_2015_06--2017_08.pdf
Обратите внимание: все файлы многостраничные.
В галереи товара представлены эскизы изображений уменьшенного объема.
Покупателю высылаются PDF файлы исходного качества.