TOYOTA Corolla Verso 2001-2004

750 руб.
Быстрый заказ

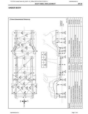
Контрольные кузовные размеры:
- Из официального руководства по ремонту кузова TOYOTA Corolla Verso (09_02001--01_2004)(CDE120,ZZE122,ZZE121), в том числе диагональные размеры проемов.
Файл TOTOTA_Corolla_Verso_2001-2004.pdf

Обратите внимание: все файлы многостраничные.
В галереи товара представлены эскизы изображений уменьшенного объема.
Покупателю высылаются PDF файлы исходного качества.