TOYOTA Avensis (T22) 1997-2002

750 руб.
Быстрый заказ

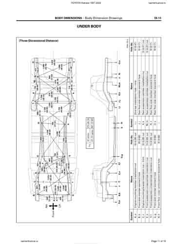
Контрольные кузовные размеры:
- Геометрические размеры кузова из официального руководства по ремонту TOYOTA Avensis (T22) 1997-2002, как проекционные, так и непосредственного измерения, в том числе диагональные размеры проемов кузова и контрольные точки для восстановления геометрии.
Файл TOYOTA_Avensis_1997-2002.pdf

В галереи товара представлены эскизы изображений уменьшенного объема.
Покупателю высылаются PDF файлы исходного качества.