SUZUKI Swift+ (T250) 2008-2011

750 руб.
Быстрый заказ

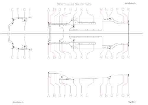
Контрольные кузовные размеры:
- Геометрические размеры кузова SUZUKI Swift+ (T250) 2008-2011, как проекционные, так и непосредственного измерения, в том числе диагональные размеры проемов кузова и контрольные точки для восстановления геометрии кузова.
Файл 2009_Suzuki_Swift_+.pdf

В галереи товара представлены эскизы изображений уменьшенного объема.
Покупателю высылаются PDF файлы исходного качества.