SUZUKI Swift 2004-2011

750 руб.
Быстрый заказ

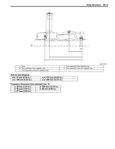
Контрольные кузовные размеры SUZUKI Swift 2004-2011:
- Из заводского руководства по ремонту кузова, в том числе диагональные размеры проемов кузова и величины зазоров кузовных панелей.
Файл Suzuki_Swift_3D_5D_2005-brm.pdf

- Проекционные размеры с привязкой к стапелю. Дополнительно приведены цветные фотографии мест расположения контрольных точек на реальном автомобиле.
Файл Suzuki_Swift_5D_2005-stapel.PDF

В галереи товара представлены эскизы изображений уменьшенного объема.
Покупателю высылаются PDF файлы исходного качества.