SUZUKI Igins (RM413) 2003--

750 руб.
Быстрый заказ

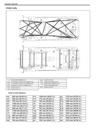
Контрольные кузовные размеры SUZUKI Igins (RM413) 2003- моделей Седан и Хэтчбек
- Из заводского руководства по ремонту кузова, в том числе диагональные размеры проемов кузова.
Файл Suzuki_Igins_RM413_2003-DIM.pdf

- Проекционные размеры с привязкой к стапелю. Дополнительно приведены цветные фотографии мест расположения контрольных точек на реальном автомобиле.
Файл Suzuki Igins HX51 2003-.pdf

В галереи товара представлены эскизы изображений уменьшенного объема.
Покупателю высылаются PDF файлы исходного качества.