SUZUKI Igins (RG413) 2000--

750 руб.
Быстрый заказ

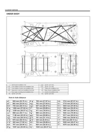
Контрольные кузовные размеры SUZUKI Igins (RG413) 2000-- моделей Седан и Хэтчбек
- Из заводского руководства по ремонту кузова, в том числе диагональные размеры проемов кузова.
Файл Suzuki_Igins_RG413_2000-DIM.pdf

В галереи товара представлены эскизы изображений уменьшенного объема.
Покупателю высылаются PDF файлы исходного качества