SSANGYONG Kyron 2005-2011

750 руб.
Быстрый заказ

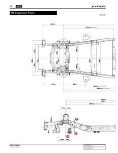
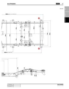
Контрольные кузовные размеры:
- Из заводского руководства по ремонту кузова SSANGYONG Kyron 2005-2011, в том числе диагональные размеры проемов кузова и величины зазоров кузовных панелей.
Файл KYRON_2005-Body.pdf

Обратите внимание: все файлы многостраничные.
В галереи товара представлены эскизы изображений уменьшенного объема.
Покупателю высылаются PDF файлы исходного качества.