SSANGYONG Actyon Sports 2006-2011

750 руб.
Быстрый заказ

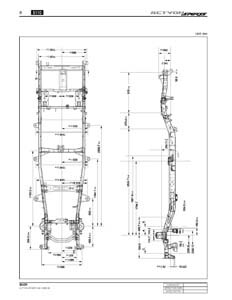
Контрольные кузовные размеры:
- Из заводского руководства по ремонту кузова SSANGYONG Actyon Sports 2006-2011, в том числе диагональные размеры проемов кузова.
Файл SsangYong_Actyon_Sports-brm.pdf

Обратите внимание: все файлы многостраничные.
В галереи товара представлены эскизы изображений уменьшенного объема.
Покупателю высылаются PDF файлы исходного качества.