NISSAN Xterra (N50) 2005-2015

750 руб.
Быстрый заказ

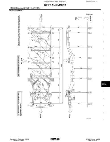
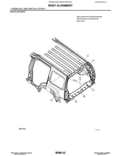
Контрольные кузовные размеры NISSAN Xterra (N50) 2005-2015:
- Из официального руководства по ремонту кузова, в том числе диагональные размеры проемов кузова.
Файл NISSAN_Xterra_(N50)_2005-2015_kuzov.pdf

-Полное руководство по кузовному ремонту 62 стр. на английском языке, включающее изображения сечений кузова, места резки и способы сварки элементов.
Файл NISSAN_Xterra_(N50)_2005-2015_Full_BRM.pdf

- Размеры кузова, как проекционные, так и непосредственного измерения, в том числе диагональные размеры проемов кузова.
Файл 2013_NISSAN_Xterra__4DR__4WD.pdf

Обратите внимание: все файлы многостраничные.
В галереи товара представлены эскизы изображений уменьшенного объема.
Покупателю высылаются PDF файлы исходного качества.