NISSAN Titan (A60) 2003-2015

750 руб.
Быстрый заказ

Контрольные кузовные размеры NISSAN Titan (A60) 2003-2015:
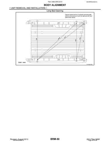
- Из официального руководства по ремонту кузова, в том числе диагональные размеры проемов кузова.
Файл Titan_(A60)_2003-2015_kuzov.pdf

- Размеры кузова автомобилей, как проекционные, так и непосредственного измерения, в том числе диагональные размеры проемов кузова.
Файлы
2013_NISSAN_Titan_CrewCab_Longbed_4WD.pdf
2013_NISSAN_Titan_CrewCab_LongBed_2WD.pdf
2013_NISSAN_Titan_CrewCab_ShortBed_2WD.pdf
2013_NISSAN_Titan_CrewCab_ShortBed_4WD.pdf
2013_NISSAN_Titan_KingCab_ShortBed_2WD.pdf
2013_NISSAN_Titan_KingCab_ShortBed_4WD.pdf

-Полное руководство по кузовному ремонту 98 стр. на английском языке, включающее изображения сечений кузова, места резки и способы сварки элементов.
Файл Titan_(A60)_2003-2015_Full_BRM.pdf

Обратите внимание: все файлы многостраничные.
В галереи товара представлены эскизы изображений уменьшенного объема.
Покупателю высылаются PDF файлы исходного качества.