NISSAN Tiida, Tiida Versa (C11) 2004-2013

750 руб.
Быстрый заказ

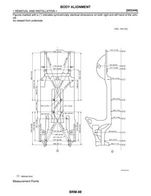
Контрольные кузовные размеры NISSAN Tiida (C11) 2004-2013:
- Из заводского руководства по ремонту кузова Nissan Tiida Body Repair Manual
, в том числе диагональные размеры проемов кузова и контрольные точки геометрии кузова Ниссан Тиида.
Файлы Nissan Tiida_C11_Sedan_HB_RUS_plant.pdf
Nissan_Tiida C11_sedan-2007-2011_plant.pdf
Nissan_Tiida-Versa_HB_2006_plant.pdf

- Проекционные размеры с привязкой к стапелю. Дополнительно приведены цветные фотографии мест расположения контрольных точек Ниссан Тиида на реальном автомобиле.
Файлы
Nissan_Tiida_C11_5DHB_2007_stapel.pdf
Nissan_Tiida_C11_Sedan_2007_stapel.pdf

Обратите внимание: все файлы многостраничные.
В галереи товара представлены эскизы изображений уменьшенного объема.Покупателю высылаются PDF файлы исходного качества.