NISSAN NV (F80) 2011-2021

750 руб.
Быстрый заказ

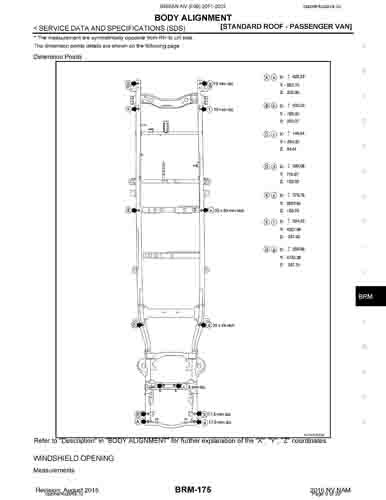
Контрольные кузовные размеры NISSAN NV (F80) (NV1500, NV2500, NV3500) 2011-2021 из официального руководства по ремонту кузова. В том числе диагональные размеры проемов кузова и контрольные точки для восстановления геометрии кузова.
Файлы
NISSAN_NV_(F80)_High_Roof_Cargo_Van_2015.pdf
NISSAN_NV_(F80)_Standart_Roof_Cargo_Van_2015.pdf
NISSAN_NV_(F80)_Standart_Roof_Passenger_Van_2015.pdf

В галереи товара представлены эскизы изображений уменьшенного объема.
Покупателю высылаются PDF файлы исходного качества.