NISSAN Leaf (ZE0) 2010-2018

750 руб.
Быстрый заказ

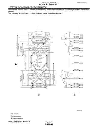
Контрольные кузовные размеры NISSAN Leaf (ZE0) 2010-2018:
- Из заводского руководства по ремонту кузова NISSAN Leaf Body Repair Manual, в том числе диагональные размеры проемов кузова и контрольные точки геометрии кузова Ниссан Лиф.
Файл Nissan_Leaf_2010-2018-kuzov.pdf

Обратите внимание: все файлы многостраничные.
В галереи товара представлены эскизы изображений уменьшенного объема.
Покупателю высылаются PDF файлы исходного качества.