NISSAN Frontier (D40) 2004-2021

750 руб.
Быстрый заказ

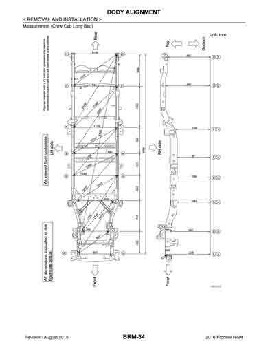
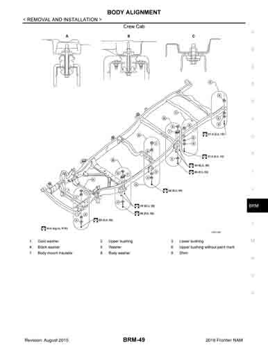
Контрольные кузовные размеры NISSAN Frontier (D40) 2004-2021:
- Из официального руководства по ремонту кузова, в том числе диагональные размеры проемов кузова.
Файл Frontier_D40_2015_BRM.pdf

- Геометрические размеры кузова NISSAN Frontier (D40) 2004-2021, как проекционные, так и непосредственного измерения, в том числе диагональные размеры проемов кузова и контрольные точки для восстановления геометрии кузова.
Файлы
2005_NISSAN_Frontier_King_Cab_6ftBed_4WD.pdf
2013_NISSAN_Frontier_King_Cab_6ftBed_4WD.pdf
2019_Nissan_Frontier_King_Cab_2WD4WD.pdf

Обратите внимание: все файлы многостраничные.
В галереи товара представлены эскизы изображений уменьшенного объема
Покупателю высылаются PDF файлы исходного качества.