NISSAN Armada (TA60) 2003-2016

750 руб.
Быстрый заказ

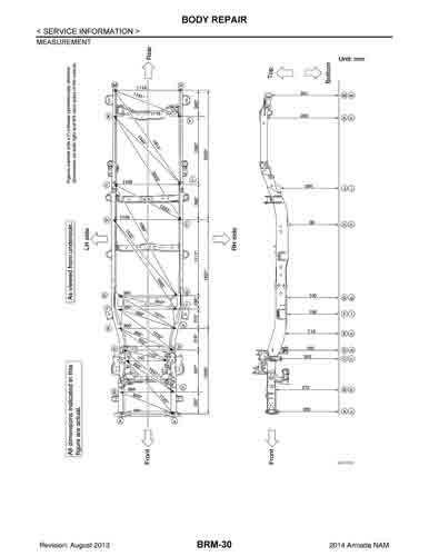
Контрольные кузовные размеры NISSAN Armada (TA60) 2003-2016:
- Из официального руководства по ремонту кузова, в том числе диагональные размеры проемов кузова.
Файл NISSAN_Armada_(T60)_2003-2016_kuzov.pdf

-Полное руководство по кузовному ремонту 65 стр. на английском языке, включающее изображения сечений кузова, места резки с способы сварки элементов.
Файл NISSAN_Armada_(T60)_2003-2016_Full__BRM.pdf

- Размеры кузова, как проекционные, так и непосредственного измерения, в том числе диагональные размеры проемов кузова.
Файлы 2013_NISSAN_Armada__4DR__4WD.pdf
2013_NISSAN_Armada__4DR__2WD.pdf

Обратите внимание: все файлы многостраничные.
В галереи товара представлены эскизы изображений уменьшенного объема.
Покупателю высылаются PDF файлы исходного качества.