MITSUBISHI Pajero iO (H6#, H7#) 1998-2007

750 руб.
Быстрый заказ

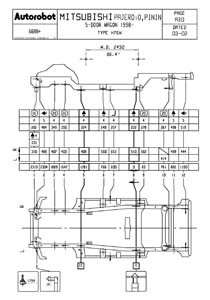
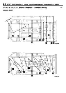
Контрольные кузовные размеры MITSUBISHI Pajero iO (H6#, H7#):
- Из заводского руководства по ремонту кузова, в том числе диагональные размеры проемов кузова и точные места расположения контрольных точек.
Файл Pajero_iO_1999_brm.pdf

- Проекционные размеры с привязкой к стапелю.
Файл Pajero_iO_Pinin_5d_98-stapel.PDF

Обратите внимание: все файлы многостраничные.
В галереи товара представлены эскизы изображений уменьшенного объема.
Покупателю высылаются PDF файлы исходного качества.