MITSUBISHI Lancer IX (CS#) 2000-2010

750 руб.
Быстрый заказ

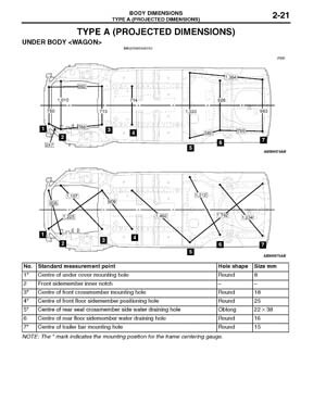
Контрольные кузовные размеры MITSUBISHI Lancer IX (CS#) 2000-2007-2010:
- Из заводского руководства по ремонту кузова, в том числе диагональные размеры проемов.
Файл Lancer_2004_plant.pdf - 37 страниц

- Проекционные размеры с привязкой к стапелю.
Файл Mits_Lancer_CS_4d sedan 2003-stapel.pdf

- Размеры кузова, как проекционные, так и непосредственного измерения.
Файлы
Mits_Lancer_sedan 2005 USA.pdf
2007_MITSUBISHI_Lancer__4DR__Sedan.pdf
2002_MITSUBISHI_Lancer_4DR_Sedan.pdf

Обратите внимание: все файлы многостраничные.
В галереи товара представлены эскизы изображений уменьшенного объема.
Покупателю высылаются PDF файлы исходного качества.