MITSIBISHI Colt 1992-1996

750 руб.
Быстрый заказ

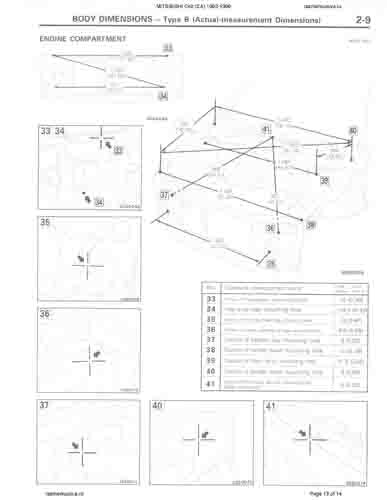
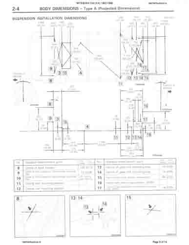
Контрольные кузовные размеры MITSIBISHI Colt (CA) 1992-1996 из официального руководства по ремонту кузова, как проекционные, так и непосредственного измерения, в том числе диагональные размеры проемов кузова и точные места расположения контрольных точек.
Файл MITSIBISHI_Colt_(CA)_1992-1996.pdf

В галереи товара представлены эскизы изображений уменьшенного объема.
Покупателю высылаются PDF файлы исходного качества.