MAZDA RX-8 2003-2008-2012

750 руб.
Быстрый заказ

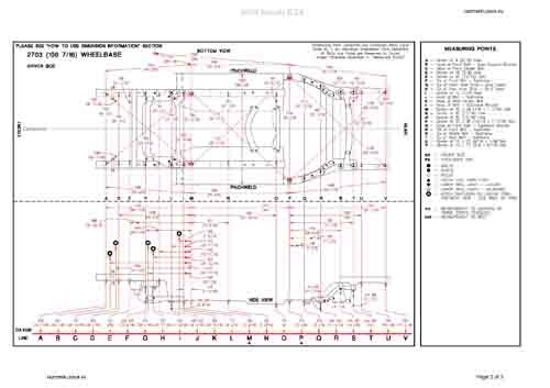
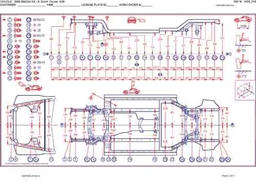
Контрольные кузовные размеры:
- Геометрические размеры кузова MAZDA RX-8 2003-2008-2012, как проекционные, так и непосредственного измерения, в том числе диагональные размеры проемов кузова и контрольные точки для восстановления геометрии кузова.
Файлы
2005_MAZDA_RX_-_8__Sport__Coupe.pdf
2008_Mazda_RX8.pdf
2011_MAZDA_RX_-_8__Sport__Coupe.pdf

Обратите внимание: все файлы многостраничные.
В галереи товара представлены эскизы изображений уменьшенного объема.
Покупателю высылаются PDF файлы исходного качества.