LEXUS RX450h, RX450hl 2015-2017

750 руб.
Быстрый заказ

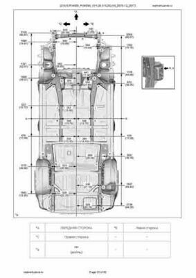
Контрольные кузовные размеры:
- Из официального руководства по ремонту кузова LEXUS RX450h, RX450hL (GYL26 GYL25) (10_2015--12_2017), в том числе диагональные размеры проемов. На русском языке.
Файл LEXUS_RX450h,_RX450hL_(GYL26_GYL25)_RU_BRM_(2015_10--2017_12).pdf

Обратите внимание: все файлы многостраничные.
В галереи товара представлены эскизы изображений уменьшенного объема.
Покупателю высылаются PDF файлы исходного качества.