LEXUS LX570 LX450D (URJ201, VDJ201) 2015-2022

750 руб.
Быстрый заказ

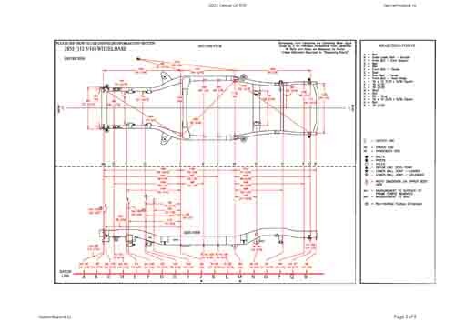
Контрольные кузовные размеры:
- Из официального руководства по ремонту кузова LEXUS LX570, LX450D (URJ201 VDJ201) (09_2015--), в том числе диагональные размеры проемов. 24 стр. на русском языке.
Файл LEXUS_LX570,_LX450D_2015--_RU_BRM.pdf

-Геометрические размеры, как проекционные, так и непосредственного измерения, в том числе диагональные размеры проемов кузова и контрольные точки для восстановления геометрии.
Файл 2021_Lexus_LX_570.pdf​

В галереи товара представлены эскизы изображений уменьшенного объема.
Покупателю высылаются PDF файлы исходного качества.