LAND ROVER Range Rover 1 Classic 1970-1996

750 руб.
Быстрый заказ

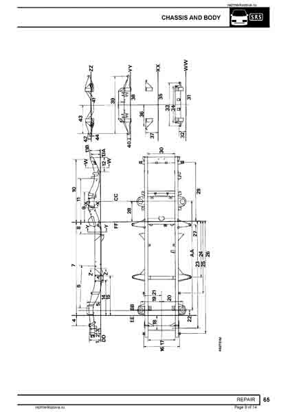
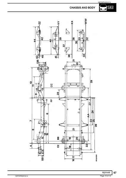
Контрольные кузовные размеры:
- Из заводского руководства по ремонту кузова LAND ROVER Range Rover 1 Classic 1970-1996. Только размеры рамы.
Файл 1995_MY_Range_Rover_Classic_Body.pdf

- Геометрические размеры кузова LAND ROVER Range Rover 1 Classic 1970-1996, как проекционные, так и непосредственного измерения, в том числе диагональные размеры проемов кузова и контрольные точки для восстановления геометрии.
Файл 1993_LAND__ROVER_Range__Rover_100inch_wb__.pdf

Обратите внимание: все файлы многостраничные.
В галереи товара представлены эскизы изображений уменьшенного объема.
Покупателю высылаются PDF файлы исходного качества.