LAND ROVER Discovery 2 (L318) 1998-2002-2004

750 руб.
Быстрый заказ

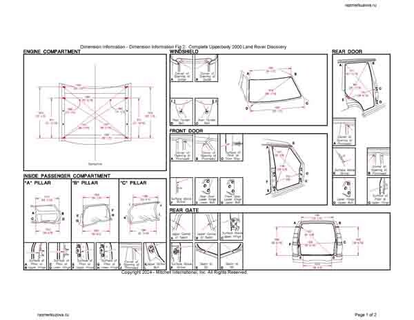
Контрольные кузовные размеры из заводского руководства по ремонту кузова LAND ROVER Discovery 2 (L318) 1998-2004, в том числе размеры проемов кузова. Дополнительно приведены сведения о допустимых зазорах кузовных панелей.
Файл LAND_ROVER_Discovery_2_( L318)_1998-2004.pdf

- Геометрические размеры кузова LAND ROVER Discovery 2, как проекционные, так и непосредственного измерения, в том числе диагональные размеры проемов кузова и контрольные точки для восстановления геометрии.
Файлы
2000_Land_Rover_Discovery.pdf
2002_LAND__ROVER_Discovery__II_4DR_4WD_.pdf
2003_LAND__ROVER_Discovery__4DR_4WD.pdf

- Проекционные размеры с привязкой к стапелю. Только рама.
Файл LAND_ROVER_Discovery_5DR_4WD_1999--.pdf

Обратите внимание: все файлы многостраничные.
В галереи товара представлены эскизы изображений уменьшенного объема.
Покупателю высылаются PDF файлы исходного качества.