LAND ROVER Defender 1990-2007

750 руб.
Быстрый заказ

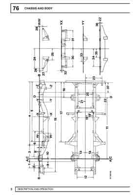
Контрольные кузовные размеры:
- Проекционные размеры с привязкой к стапелю. Только рама.
Файл LAND_ROVER_Defender_3DR_SWB_1986-2000.pdf

- Из заводского руководства по ремонту кузова LAND ROVER Defender 90, 110
, в том числе размеры проемов кузова. Приведены только проекционные размеры рамы. Нет диагональных размеров и размеров проемов кузова.
Файлы
1995_Defender_110_Frame.pdf
1997_Defender_90_Frame_(wmld970n).pdf

Полное заводское руководство по разборке сборке и ремону кузова LAND ROVER Defender
110.
202 стр. на английском языке. Файл 1995_Defender_110_Full_Body_repair_manual_(bm00851e).pdf

В галереи товара представлены эскизы изображений уменьшенного объема.
Покупателю высылаются PDF файлы исходного качества.