KIA Sorento I (BL) 2002-2010

750 руб.
Быстрый заказ

Контрольные кузовные размеры
KIA Sorento (BL)
:
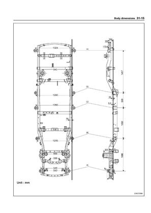
- Из заводского руководства по ремонту кузова KIA Sorento Body Repair Manual, в том числе диагональные размеры проемов кузова и контрольные точки для восстановления геометрии кузова Киа Соренто.
Файл KIA_Sorento_BL_2003-2009_plant.pdf

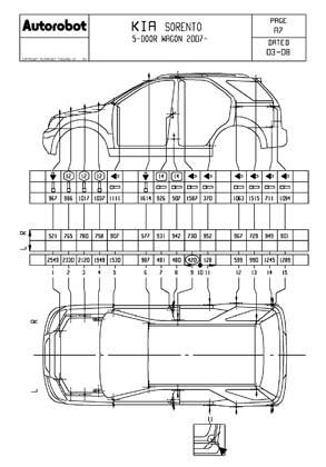
- Проекционные геометрические размеры кузова с привязкой к стапелю. Дополнительно приведены цветные фотографии мест расположения контрольных точек KIA Sorento на реальном автомобиле.
Файлы
KIA_Sorento_BL_2004_stapel.pdf
KIA_Sorento_BL_2007_stapel.pdf

- Геометрические размеры кузова KIA Sorento, как проекционные, так и непосредственного измерения, в том числе диагональные размеры проемов кузова и контрольные точки для восстановления геометрии кузова Киа Соренто.
Файл KIA_Sorento_4WD_2004_USA.pdf

Обратите внимание: все файлы многостраничные.
В галереи товара представлены эскизы изображений уменьшенного объема.
Покупателю высылаются PDF файлы исходного качества.