KIA Quoris (KH) 2012-2018

750 руб.
Быстрый заказ

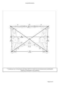
Контрольные кузовные размеры KIA Quoris (KH) 2012-2018​
- Из заводского руководства по ремонту кузова Body Repair Manual, в том числе диагональные размеры проемов кузова и контрольные точки для восстановления геометрии. Дополнительно приведены допустимые значения зазоров кузовных панелей.
Файл Quoris_KH_2012-kuzov.pdf

Обратите внимание: все файлы многостраничные.
В галереи товара представлены эскизы изображений уменьшенного объема.
Покупателю высылаются PDF файлы исходного качества.