INFINITI QX56 (JA60) 2004-2010

750 руб.
Быстрый заказ

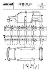
Контрольные кузовные размеры INFINITI QX56 (JA60) 2004-2010:
- Из заводского руководства по ремонту кузова, в том числе диагональные размеры проемов.
Файл INFINITI_QX56_(JA60)_EU.pdf

- Проекционные геометрические размеры кузова с привязкой к стапелю.
Файл Infiniti_QX56_2004-stapel.PDF

-Геометрические размеры, как проекционные, так и непосредственного измерения, в том числе диагональные размеры проемов кузова.
Файл 2006_INFINITI_QX56__4DR__AWD_USA.pdf

Обратите внимание: все файлы многостраничные.
В галереи товара представлены эскизы изображений уменьшенного объема.
Покупателю высылаются PDF файлы исходного качества.