HYUNDAI ix55, Veracruz 2007-2012

750 руб.
Быстрый заказ

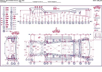
Контрольные размеры кузова для автомобилей HYUNDAI ix55:
- Из заводского руководства по ремонту кузова HYUNDAI ix55, в том числе размеры проемов кузова.
Файл ix55_Veracruz_(EN)_2007-kuzov.pdf

- Геометрические размеры кузова HYUNDAI Veracruz для автомобилей американского рынка, как проекционные, так и непосредственного измерения, в том числе диагональные размеры проемов кузова и контрольные точки для восстановления геометрии.
Файл 2012_HYUNDAI_Veracruz__4DR__AWD.pdf

Обратите внимание: все файлы многостраничные.
В галереи товара представлены эскизы изображений уменьшенного объема.
Покупателю высылаются PDF файлы исходного качества.