HYUNDAI Elantra IV (HD) 2006-2010

750 руб.
Быстрый заказ

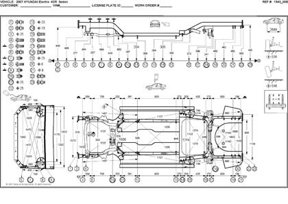
Контрольные кузовные размеры моделей Седан и Универсал:
- Из заводского руководства по ремонту кузова HYUNDAI Elantra, в том числе диагональные размеры проемов кузова.
Файл Hyundai_HD_plant.pdf

- Размеры кузова для автомобилей американского рынка, как проекционные, так и непосредственного измерения.
Файлы
2007_HYUNDAI_Elantra__4DR__Seda.pdf
2009_HYUNDAI_Elantra__Wagon.pdf

Обратите внимание: все файлы многостраничные.
В галереи товара представлены эскизы изображений уменьшенного объема.
Покупателю высылаются PDF файлы исходного качества.