HONDA Accord VI (CG, CH) 1997-2003

750 руб.
Быстрый заказ

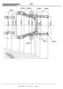
Контрольные кузовные размеры HONDA Accord VI (CG, CH) 1997-2003:
- Из заводского руководства по ремонту кузова, в том числе диагональные размеры проемов кузова.
Файл Honda_Accord_CG_CH_1998--esm.PDF

- Проекционные размеры с привязкой к стапелю.
Файлы
Honda_Accord_2D_98-stapel.PDF
Honda_Accord_4D_98-stapel.PDF
Honda_Accord_5D_2000-stapel.PDF
Honda_Accord_CG_2D_1998-2003-stapel.PDF
Honda_Accord_CG_4D_1998-2003-stapel.PDF
Honda_Accord_CH_5DLift_1998-2003-stapel.PDF

Обратите внимание: все файлы многостраничные.
В галереи товара представлены эскизы изображений уменьшенного объема.
Покупателю высылаются PDF файлы исходного качества.