HONDA Accord IX Hybrid (CR) 2015-2017

750 руб.
Быстрый заказ

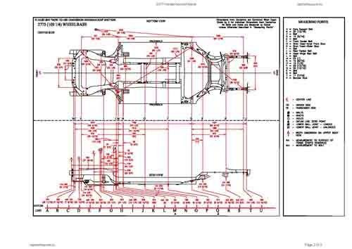
Контрольные кузовные размеры HONDA Accord IX Hybrid (CR) 2015-2017 из официального руководства по ремонту кузова. Содержат размеры верхней и нижней части кузова, в том числе размеры моторного отсека, диагональные размеры проемов кузова, размеры подрамников и контрольные точки для восстановления геометрии кузова. Даны значения допустимых зазоров кузовных панелей.
Файлы
HONDA_Accord_4D_US_(FHEV)_2014-2017.pdf
HONDA_Accord_4D_US_Plug-In_2014-2017.pdf


- Геометрические размеры кузова HONDA Accord IX Hybrid (CR) 2015-2017, как проекционные, так и непосредственного измерения, в том числе диагональные размеры проемов кузова и контрольные точки для восстановления геометрии кузова.
Файл 2017_Honda_Accord_Sedan_Hybrid.pdf

Обратите внимание: все файлы многостраничные.
В галереи товара представлены эскизы изображений уменьшенного объема.
Покупателю высылаются PDF файлы исходного качества.