HAVAL H6 2013-2022

750 руб.
Быстрый заказ

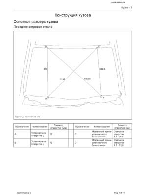
Контрольные кузовные размеры HAVAL H6 2013-2022:
- Из заводского руководства по ремонту кузова, в том числе диагональные размеры проемов. Приведены допустимые значения величин зазоров кузовных панелей Хавал Ха 6, Хавейл Эйч 6.
Файл GW_Haval_H6_body.pdf

В документации отмечено: "даны ОСНОВНЫЕ размеры кузова". Просьба внимательно ознакомится с приведенными миниатюрами представленных чертежей.

Обратите внимание: файлы многостраничные.
В галереи товара представлены эскизы изображений уменьшенного объема.
Покупателю высылаются PDF файлы исходного качества.