DODGE Dart (PF) 2012-2016

750 руб.
Быстрый заказ

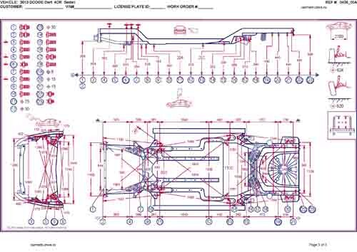
Контрольные кузовные размеры:
- Геометрические размеры кузова DODGE Dart (PF) 2012-2016, как проекционные, так и непосредственного измерения, в том числе диагональные размеры проемов кузова и контрольные точки для восстановления геометрии кузова.
Файлы
2016_Dodge_Dart.pdf
2013_DODGE_Dart__4DR__Sedan.pdf

Обратите внимание: все файлы многостраничные.
В галереи товара представлены эскизы изображений уменьшенного объема.
Покупателю высылаются PDF файлы исходного качества.