CHEVROLET Uplander 2004-2009

750 руб.
Быстрый заказ

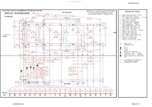
Контрольные кузовные размеры:
- Геометрические размеры кузова CHEVROLET Uplander 2004-2009, как проекционные, так и непосредственного измерения, в том числе диагональные размеры проемов кузова и контрольные точки для восстановления геометрии кузова.
Файлы
2009_Chevrolet_Uplander_EXT_2WD.pdf
2008_CHEVROLET_Uplander__Shortbody.pdf
2008_CHEVROLET_Uplander__Longbody.pdf

Обратите внимание: все файлы многостраничные.
В галереи товара представлены эскизы изображений уменьшенного объема.
Покупателю высылаются PDF файлы исходного качества.