CHEVROLET Evanda, Epica (V200) 2004-2006

750 руб.
Быстрый заказ

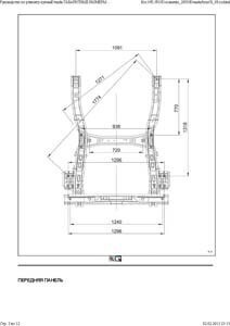
Контрольные кузовные размеры CHEVROLET Evanda, Epica (V200) 2004-2006:
- Из заводского руководства по ремонту кузова, в том числе диагональные размеры проемов.
Файл 2005_Evanda.pdf

- Проекционные геометрические размеры кузова с привязкой к стапелю. Дополнительно приведены цветные фотографии мест расположения контрольных точек на реальном автомобиле.
Файл Chevrolet_Evanda_05-06_stapel.PDF

-Геометрические размеры CHEVROLET Epica, как проекционные, так и непосредственного измерения, в том числе диагональные размеры проемов кузова и контрольные точки для восстановления геометрии.
Файл 2005_CHEVROLET_Epica__4DR__Seda.pdf

Обратите внимание: все файлы многостраничные.
В галереи товара представлены эскизы изображений уменьшенного объема.
Покупателю высылаются PDF файлы исходного качества.