CHEVROLET Aveo (T250) 2006-2011

750 руб.
Быстрый заказ

Контрольные кузовные размеры CHEVROLET Aveo (T250) 2006-2011 для моделей Седан и Хетчбек
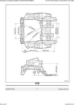
- Из заводского руководства по ремонту кузова, в том числе диагональные размеры проемов кузова и контрольные точки для восстановления геометрии кузова Шевроле Авео.
Файлы
Chevrolet_Aveo_2009_plant.pdf
Chevrolet_Aveo_Sedan_2011_plant.pdf

- Проекционные геометрические размеры кузова с привязкой к стапелю. Дополнительно приведены цветные фотографии мест расположения контрольных точек Chevrolet Aveo
на реальном автомобиле.
Файл Chevrolet_Aveo_5DHB_2008_stapel.pdf

- Геометрические размеры кузова PONTIAC G3 для автомобилей американского рынка, как проекционные, так и непосредственного измерения, в том числе диагональные размеры проемов кузова и контрольные точки для восстановления геометрии кузова.
Файл 2009 PONTIAC G3 4DR Hatchback.pdf

На рынках разных стран автомобиль продавался под именами Chevrolet Kalos и PONTIAC G3.

Обратите внимание: все файлы многостраничные.
В галереи товара представлены эскизы изображений уменьшенного объема.
Покупателю высылаются PDF файлы исходного качества.