ACURA CSX 2005-2011

750 руб.
Быстрый заказ

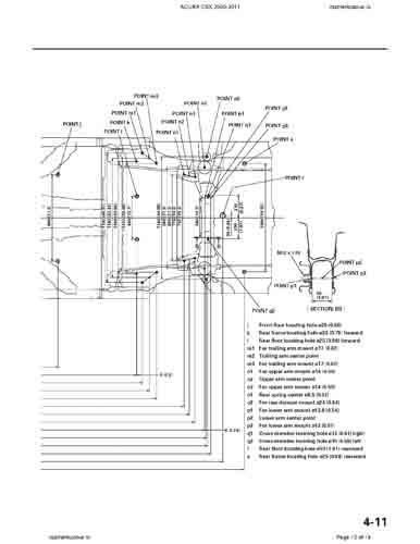
Контрольные кузовные размеры ACURA CSX 2005-2011 из официального руководства по ремонту кузова. Содержат размеры верхней и нижней части кузова, в том числе размеры моторного отсека, диагональные размеры проемов кузова, размеры подрамников и контрольные точки для восстановления геометрии кузова. Модель продавалась также под наименованием HONDA Civic Sedan (FD) 2005-2009
Файл ACURA_CSX_2005-2011.pdf

Обратите внимание: все файлы многостраничные.
В галереи товара представлены эскизы изображений уменьшенного объема. Покупателю высылаются PDF файлы исходного качества.